Ontrommelen

Opdrachtgever: Particulier
Locatie: Tilburg
Start: 2024
Oplevering: 2025

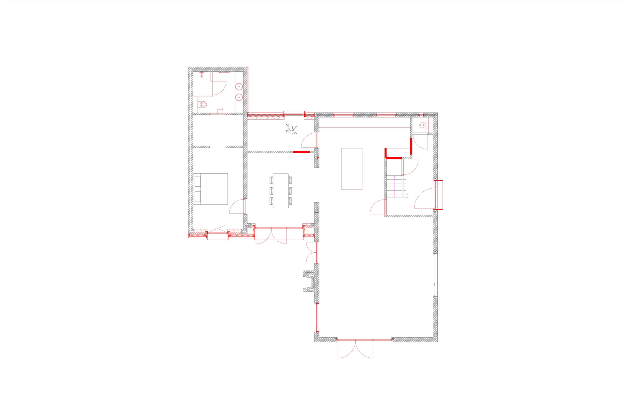
Bestaande situatie

De oorspronkelijk woning is gebouwd in de jaren 60. Er is in de loop van de tijd veel aan verbouwd. Het bestaande hoofdgebouw is verlengd, de vrijstaande garage is met een tussenbouw verbonden aan het hoofdgebouw. Naast de woning staat een prefab houten berging en aan de straat is een carport gebouwd. Aan de zijkant is ook nog een serre aangebouwd. Al met al heeft dat een nogal rommelig tafereel opgeleverd.

Opdracht

De ‘ontrommeling’ is de eerste opgave: de aanpassingen die aan de woning gedaan gaan worden, bieden de mogelijkheid om een rustiger beeld te maken. Daarnaast is de woning ook aan een grondige bouwkundige renovatie toe. Zo goed als het kan na isoleren, een nieuwe installatie met zonnepanelen en een warmtepomp, een nieuwe geïsoleerde betonvloer met vloerverwarming op de begane grond en nieuwe kozijnen met goed geïsoleerde ramen. Maar ook de indeling, vooral van de begane grond, wringt een beetje. De bestaande keuken is heel klein en volledig gescheiden van de woonkamer.

Ontwerp

De prefab berging, de carport en de serre worden gesloopt. De kappen van de bestaande aanbouw, die in de loop van de jaren zijn toegevoegd, worden gesloopt en vervangen door een plat dak. De aanbouw krijgt een nieuwe gevelbekleding van houten latten. Binnen worden de dragende wanden tussen de woonkamer, de kleine keuken en de bijkeuken gesloopt om een open woon- eetkamer te maken. In de zij- en achtergevel komen grote ramen om meer licht in de woonkamer te krijgen.

Meer weten?